VR 120
VR 120 er et ventilasjonsaggregat utviklet for sentral ventilasjon av bygg. Aggregatet er utstyrt med roterende varmeveksler som sikrer stabil, passiv varmegjenvinning med høy virkningsgrad og bidrar til et behagelig inneklima året rundt. Serien gir også mulighet for frikjøling, slik at både komfort og energieffektivitet ivaretas i daglig drift.
VR 120 egner seg godt for installasjon i skoler, kontorer, møterom og andre næringslokaler der det stilles høye krav til komfort, energieffektivitet og driftssikkerhet.
VR-seriens konstruksjon med selvbærende ramme og 50 mm isolasjon gir et robust og kompakt aggregat som er enkelt å plassere i tekniske rom med begrenset plass. Fleksibel plassering av kanaltilkoblinger og universelle tilkoblingsmuligheter gjør installasjonen enkel å tilpasse bygget.
VR 120 er konstruert med fokus på enkel installasjon og god tilgjengelighet for service.
Luftmengde (se prosjekteringsdata for SEL/SFP verdi)
Min : 0 m3/hMax : 1950 m3/h
Varmeeffekt (kondenserende veksler)
|
Kapasitet (kondensasjonsveksler)Prosjekteringsdata er beregnet på grunnlag av en kondensasjonsveksler. Max Pa kapasitet af standardaggregat, Pt ext som funksjon av qv med hensyn til SFP-Verdiene. SFP-verdier iht. EN 13053 er for standardaggregat med ISO ePM10 >60% (M5) og ISO ePM1 50% (F7) filtre og uten varmebatteri. * Lufthastighet over fordamperoverflaten måles ved meter per sekund. OBS! SFP-verdiene måles og oppgis som en totalverdi for begge viftene. |
![]() |
TemperaturvirkningsgradTemperaturvirkningsgrad for roterende varmevekslere i henhold til EN308 (tørr). |
![]() |
LyddataLyddata er for qv = 1200 m3/h og Pt ext = 200 Pa i henhold til EN 9614-2 for overflate og EN 5136 for kanaler. |
![]() |
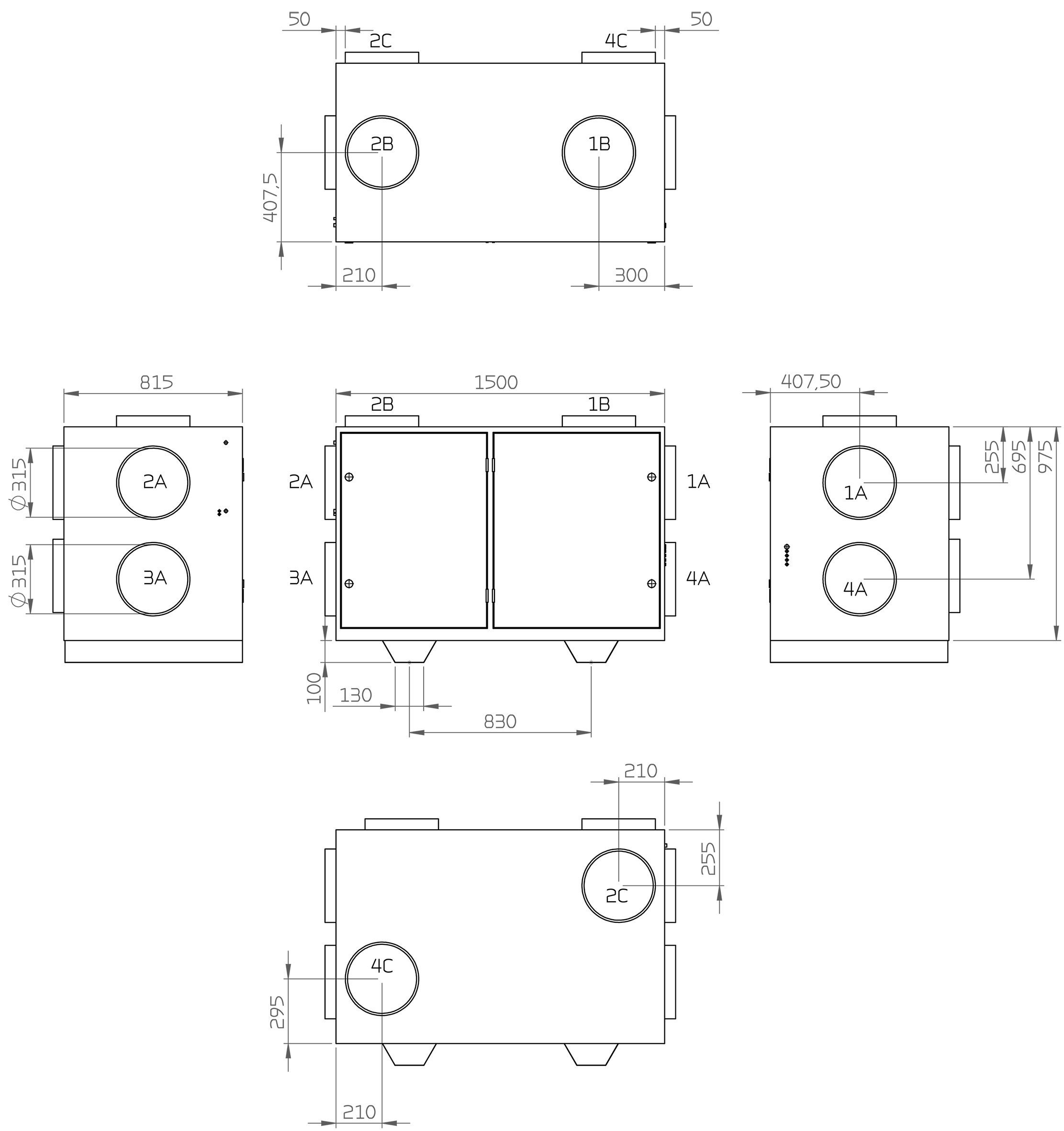
Målskisse for VR 120 (tilluft venstre side):
Alle mål er vist i mm. 1: Uteluft A: Gavlplassering
Alle mål er vist i mm. 1: Uteluft A: Gavlplassering |
CTS602i – avansert styring for næringsanlegg Ekstern kommunikasjon
Ytterligere informasjon om alle funksjonene finnes i aggregatets programvare- og monteringsveiledning.
|
.jpg)




