VPR 120
VPR 120 er et ventilasjonsaggregat med varmegjenvinning via en roterende veksler i kombinasjon med en varmepumpe. Varmepumpen har en reversibel kjølekrets, og kan kjøle eller varme tilluften avhengig av behov.
Med den roterende veksleren i kombinasjon med optimal plassering av kondensator- og fordamperbatteri oppnår aggregatet en meget høy kjøle- og varmeeffekt og dermed også en svært god COP. Aggregatets variable kompressor gir deg mulighet for presis regulering av tillufttemperaturen.
VPR 120 brukes ofte i bygninger hvor det er behov for kjøling f.eks. kontor, butikklokale, konsertsal osv.
Luftmengde (se prosjekteringsdata for SEL/SFP verdi)
Min : 400 m3/hMax : 1950 m3/h
Motor og motorstyring
|
Kapasitet (kondensasjonsveksler)Prosjekteringsdata er beregnet på grunnlag av en kondensasjonsveksler. Max Pa kapasitet af standardaggregat, Pt ext som funksjon av qv med hensyn til SFP-Verdiene. SFP-verdier iht. EN 13053 er for standardaggregat med ISO ePM10 >60% (M5) og ISO ePM1 50% (F7) filtre og uten varmebatteri. * Lufthastighet over fordamperoverflaten måles ved meter per sekund. OBS! SFP-verdiene måles og oppgis som en totalverdi for begge viftene. |
![]() |
Varmedata (kondensasjonsveksler)Prosjekteringsdata er beregnet på grunnlag av en kondensasjonsveksler.
|
![]() |
Kapasitet (sorpsjonsveksler)Prosjekteringsdata er beregnet på grunnlag av en sorpsjonsveksler. Max Pa kapasitet av standardaggregat, Pt,ext som funksjon av qv,med hensyn til SFP-Verdiene. SFP-verdier iht. EN 1353 er for standardaggregat med ISO ePM10 >60% (M5) og ISO ePM1 50% (F7) filtre og uten varmebatteri. * Lufthastighet over fordamperoverflaten måles ved meter per sekund. OBS! SFP-verdiene måles og oppgis som en totalverdi for begge viftene. |
![]() |
Kjøledata (sorpsjonsveksler)Prosjekteringsdata er beregnet på grunnlag av en sorpsjonsveksler. Kjøledata er beregnet med følgende temperaturer: |
![]() |
TemperaturvirkningsgradTemperaturvirkningsgrad for roterende varmevekslere i henhold til EN308 (tørr). |
![]() |
LyddataLyddata er for qv = 1200 m3/h og Pt ext = 250 Pa i henhold til EN 9614-2 for overflate og EN 5136 for kanaler. Lydeffektnivået LWA faller med fallende luftmengde og fallende mottrykk. Lydeffektnivået LpA i en gitt avstand vil være avhengig av de akustiske forholdene på installasjonsstedet. |
![]() |
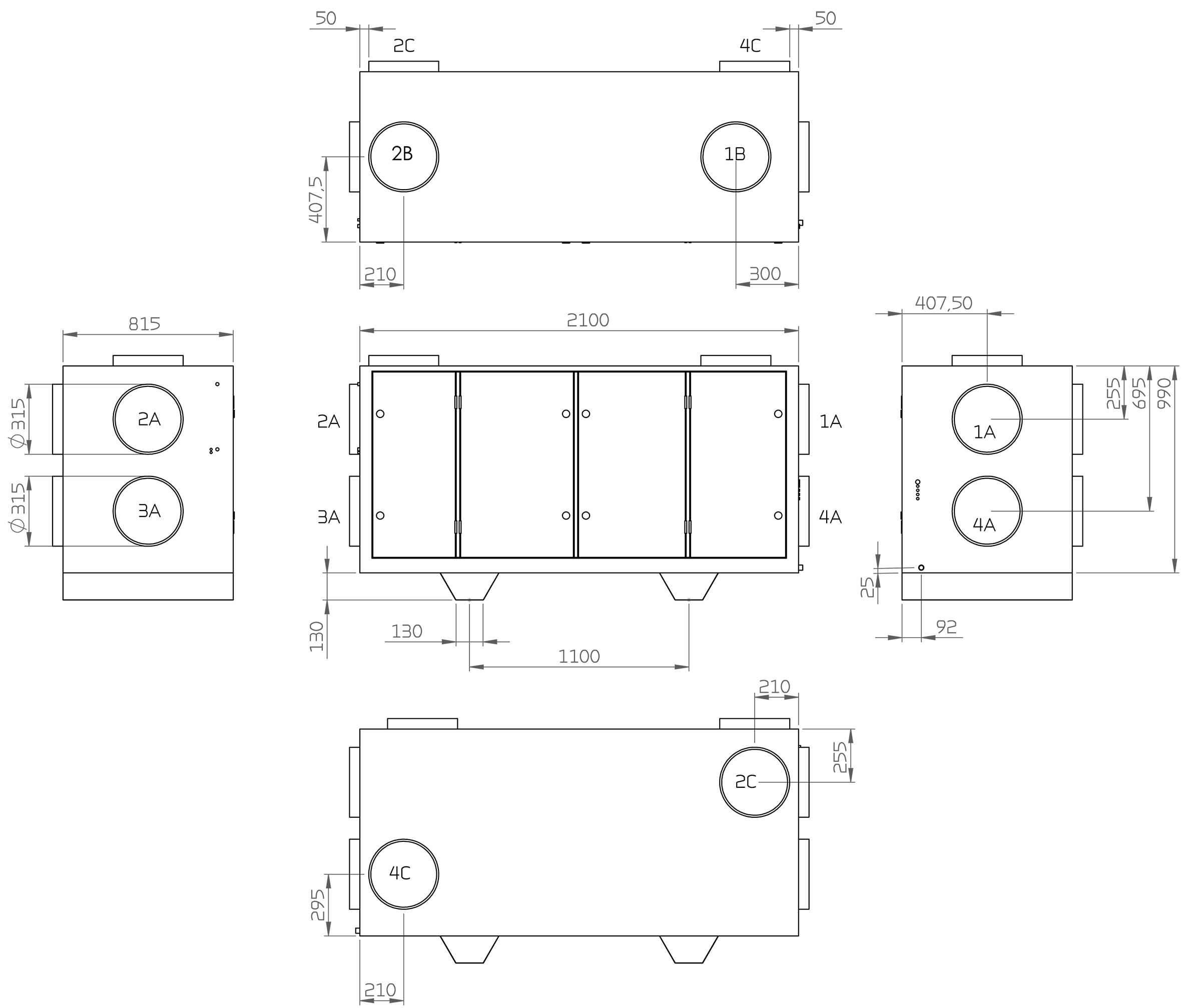
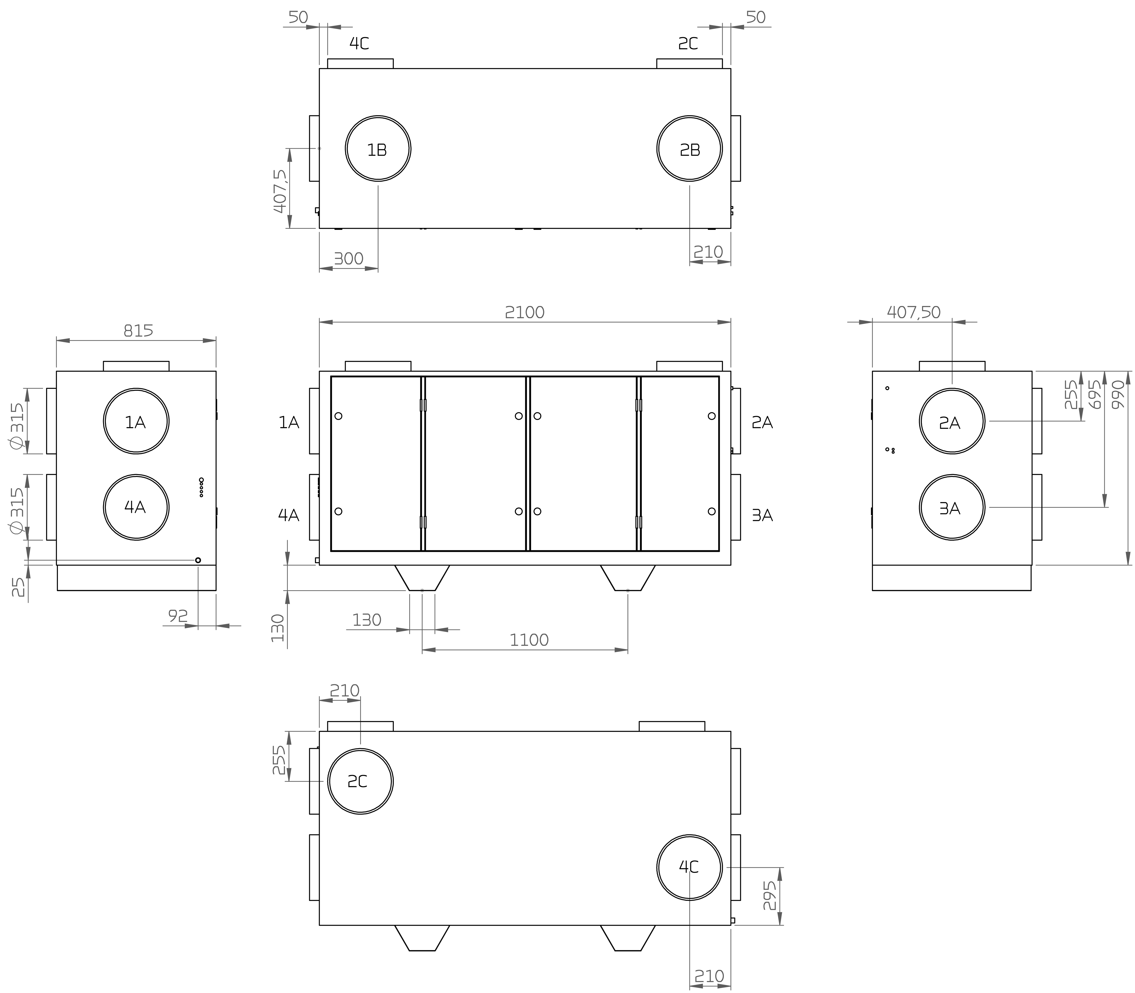
Målskisse for VPR 120 (tilluft venstre side):
Alle mål er vist i mm. 1: Uteluft A: Gavlplassering
Alle mål er vist i mm. 1: Uteluft A: Gavlplassering |
CTS602i styringen er en avansert styring for næringsanlegg med mange innstillingsmuligheter. Styringen leveres fra fabrikken med en grunninnstilling, som kan tilpasses driftsmessige ønsker og krav for å oppnå en optimal drift og utnyttelse av aggregatet. HMI Touch panelet gir god oversikt over aggregatets aktuelle drift, og har en menystruktur som er lett å finne frem i for både bruker og installatør. Det er mulig å velge mellom 2 forskjellige forsidebilder til hovedskjermen. Ekstern kommunikasjon
Ytterligere informasjon om alle funksjonene finnes i aggregatets Software- og Montasjeveiledning.
|








